8 (800) 775-44-75
(бесплатный звонок по России)
+7 (846) 233-42-63
Печь для бани и сауны

Русь-12 Л Профи с АГГ13П

Цена: 44 350 руб.

Печь Русь-12 Л рассчитана на установку в банях с парилками с размерами средними или чуть выше среднего. Комфортно париться с печью Русь 12 можно в парных русских бань, объёмом 6-12 м³.


Подробнее...

Технические характеристики

Объем парной, м3 от 6 до 12
Гарантия, лет 5
Тип топлива Газ
Вид каменки Открытая
Материал Нержавеющая сталь
Габариты (ВхШхГ), мм 830х335х690
Масса камней, кг 60
Масса, кг 54
Диаметр дымохода, мм 115

В корзине каменки камни выкладываются вокруг самого раскалённого элемента – дымосборника, - это обеспечивает качественный и равномерный прогрев камней. Особая конструкция нагревательных поверхностей обеспечивает умеренный нагрев парной до 90°С, в сочетании с отличным прогревом большой массы камней печь позволяет получить микроклимат настоящей русской бани.

«Переход» с дровяной на газовую печь для русской бани задача довольно простая – достаточно приобрести нужную модификацию газовой горелки для конкретной печи, установить ее и настроить.

Помимо привычного преимущества газа – его экономичности, есть еще ряд положительных моментов при его использовании, например: отсутствие сора от дров и золы в комнате отдыха или предбаннике. Но, пожалуй, самое главное преимущество газа перед твердым топливом – возможность гибко управлять процессом горения – комфортная температура в парилке поддерживается в автоматическом режиме. 

Топка печи выполнена из высоколегированной стали с содержанием хрома до 13%. Термически нагруженные элементы печей для бани изготавливаются из стали с содержанием хрома до 17%. Кожух–конвектор печи окрашен кремнийорганической термостойкой эмалью. Топка печей изготовлена из 4 мм нержавеющей стали с содержанием хрома не менее 17%.

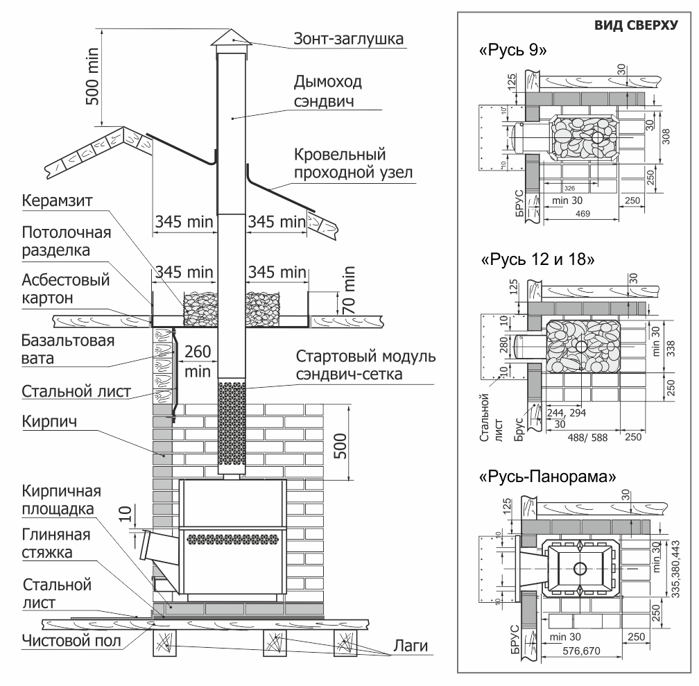
ВНИМАНИЕ! Установка автоматической газовой горелки возможна только на печи с выносным топливным каналом без панорамной дверцы! Элементы дымохода, камни и баки не входят в комплект печи и приобретаются отдельно.

 

Фото и видео

Ирина, п.Усть-Кинельский
26 августа 2023 г.

Долго решались на покупку камина. Да и живем в области – в Самаре редко бываем. К интернет-магазинам тоже особого доверия не испытывали. Хотелось, чтобы не на заказ, а купил-забрал. И вот сбылась МЕЧТА! Нам прислали живое видео из торгового зала и код для оплаты. Всё как хотели: камин из наличия, со скидкой 24000 (!) и бесплатной доставкой! Через несколько часов камин был уже у нас дома. Я счастлива! Спасибо!!!

Комментарий Компании: Огромное СПАСИБО !!! Камин великолепно вписался в дизайн. Он реально на своем месте. Мы действительно очень-очень рады тому, что вам понравилось. Не зря Вы так долго подбирали модель и цвет. Мира и Добра вашему дому!

Оригинал отзыва здесь: https://ya.cc/t/_g6nV1U34PmDuU

Екатерина Громова
23 июля 2023 г.

Большой выбор, цены ниже чем у многих. Есть возможность сделать индивидуальный дизайн!

Комментарий Компании: Ой! Спасибо! Неожиданно и приятно! Да - мы такие )) Ещё раз огромное вам спасибо!

Оригинал отзыва здесь: https://ya.cc/t/_g6nV1U34PmDuU

Елена
31 октября 2022 г.
Долго искали камин, подходящий к нашему интерьеру. И наконец, нашли компанию, где нам изготовили камин по нашим предпочтениям по цвету. Рекомендую компанию! Вежливое общение и быстрое изготовление! Камин идеально вписался в наш интерьер
Новикова Наталья
02 апреля 2022 г.

Это ВОСТОРГ. Наш камин. Понравилось все. Начиная с консультации продавца, предложения образцов. Профессионализма сотрудников и качества продукции. И как результат-Камин, воплощение мечты. Спасибо команде профессионалов. Вы просто Волшебники.

Комментарий Компании: Большое СПАСИБО за теплые слова! Но мы ещё не Волшебники - мы только учимся ими стать. Просто мы считаем, что своей работой должны нести радость людям. И, судя по Вашему отзыву, это нам удаётся! ))

Оригинал отзыва здесь: https://ya.cc/t/_g6nV1U34PmDuU

Лина А., г.Самара
13 апреля 2020 г.

Удачный «первый блин» самоизоляции! Через 30 минут заказ был доставлен мне домой! С учетом того, как долго мы искали эту деталь для дымохода (всё закрыто, никто ничего точно сказать не может) – мы были в растеренности и не знали куда обратиться. Большое спасибо! Смогли найти в закромах необходимую деталь, приняли оплату онлайн и доставили, в общем предложили готовое решение! Клиентоориентированность на 5 с плюсом! Очень советую Истопник!

Комментарий Компании: Спасибо! Новая эпоха - новые реалии. Мы постарались адаптироваться. Получается даже быстрее и удобнее, чем раньше. Здоровья всем и берегите себя!

Оригинал отзыва здесь: https://ya.cc/t/_g6nV1U34PmDuU

Юля Д., г.Самара
21 марта 2020 г.

Надумали домой камин. Долго рылись в интернете. Нужен был угловой, но угол у нас был «неправильный». В Яндексе нашли магазин каминов в ТЦ «Мягкофф» на Революционной. Сделали угловой камин по нашему лекалу, который я сделал из картонки и в цвет дверей в комнате. Если честно, то вообще не предполагали возможность такого изготовления. Они реально делают всё, что захочешь! Очень помогла продавец Галина - терпеливо выслушала, рассказала, показала, объяснила разницу. В общем - понравилось. Галине за подбор очага отдельное спасибо - без неё бы точно не разобрались.

Комментарий Компании: Спасибо за оценку нашей работы! Особенно за фразу "Они реально делают всё, что захочешь!". Терпеливо выслушивать и объяснять законы физики - это наша работа и "крест", который мы несем уже 12 лет. Галине "отдельное спасибо" передали! 

Оригинал отзыва здесь: https://ya.cc/t/_g6nV1U34PmDuU

Сергей, г.Самара
04 декабря 2019 г.

Покупал электрокамин, хороший магазин, оперативно работающий персонал, честно говоря не ожидал, что люди так работать умеют, Павел респект!

Комментарий Компании: Спасибо, мы старались. Это мы за 10 лет научились!

Оригинал отзыва здесь: https://ya.cc/t/_g6nV1U34PmDuU

Марина, г.Самара
17 ноября 2019 г.

Камин как настоящий! Всё в цвет! Смотрится супер! Мы довольны!

Виктор, г.Самара
02 ноября 2019 г.

Надеюсь, что мой отзыв поможет другим сэкономить деньги на электричестве.

Купил вот такое чудо-техники: обогреватель "Дачник". Деньги небольшие - решил потестить :)

Первое, что я с ним сделал – уронил на асфальт когда доставал из машины.... Ужас сменился удивлением от того, что никаких трещин, повреждений корпуса не случилось! Конструкция реально «неубиваемая»!

Принес домой. Включил. Через 20 минут он набрал рабочую температуру и комната начала наполняться приятным теплом. Никакого движения воздуха, никакой сухости в носу от пересушенного воздуха. Взял у друга прибор, который измеряет потребление электричества. Показал потребление 384 Вт. Через 1 час выключил из розетки. Обогреватель остывал до комнатной температуры примерно 1,5 часа. Всё это время от него шло тепло.

Подсоединил через терморегулятор. Обогреватель включается на 30 минут, потом примерно на 30 минут отключается. Среднее потребление получилось около 150-200 Вт в час. И это при условии, что моя 12 метровка – угловая холодная комната!

Нургуль, г.Уральск
24 октября 2017 г.

Много ли надо женщине для счастья? Камин - супер! Огромное спасибо вашей компании. Он отлично вписался в наш скромный угол. Теперь он наше украшение. Завтра поставлю телевизор сверху. И вуаля . Все так как я и думала. Ещё раз благодарю. Желаю процветания вашей компании. Побольше таких клиентов как я :) 

Отличное место для углового каминаМуки предварительного выбора каминаНадежная упаковка камина для отправки в другой городУгловой камин для городской квартиры

Комментарий Компании:  Спасибо за Ваш фото-отзыв! Очень впечатляет процесс движения к Вашей Мечте!

Форма отправки отзыв